十大亚洲博彩app排行榜
2019年12月3日星期二
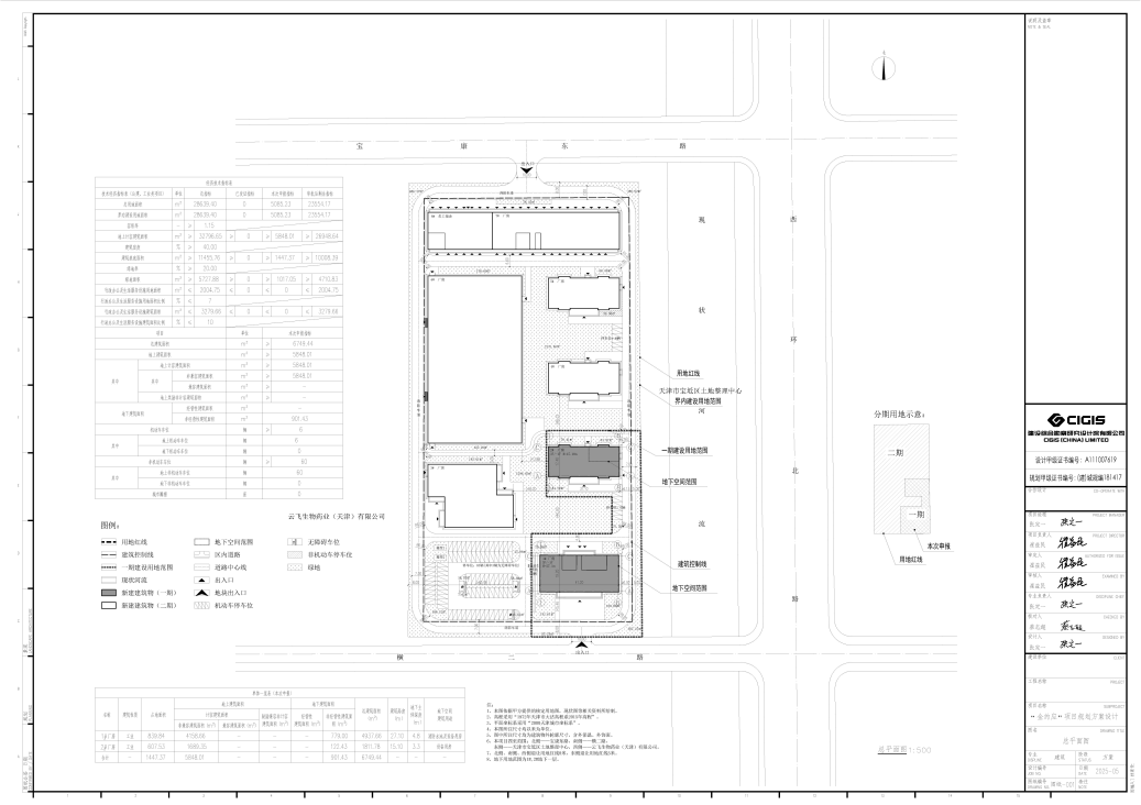
天津市规划和自然资源局宝坻分局于2025年6月9日核发了天津金约应科技发展有限公司1#厂房、2#厂房项目建设工程规划许可证。依据《中华人民共和国城乡规划法》及住房和城乡建设部《关于城乡规划公开公示的规定》的有关要求,现将该项目总平面图公布,公布期限为信息发布之日起至建设项目规划验收合格为止。
公示部门:天津市规划和自然资源局宝坻分局
建议意见反馈方式:可通过电子邮箱或信件反馈
邮寄地址:亚洲博彩app 潮阳大道北侧(天津市规划和自然资源局宝坻分局)
邮编:301800
