十大亚洲博彩app排行榜
2019年12月3日星期二
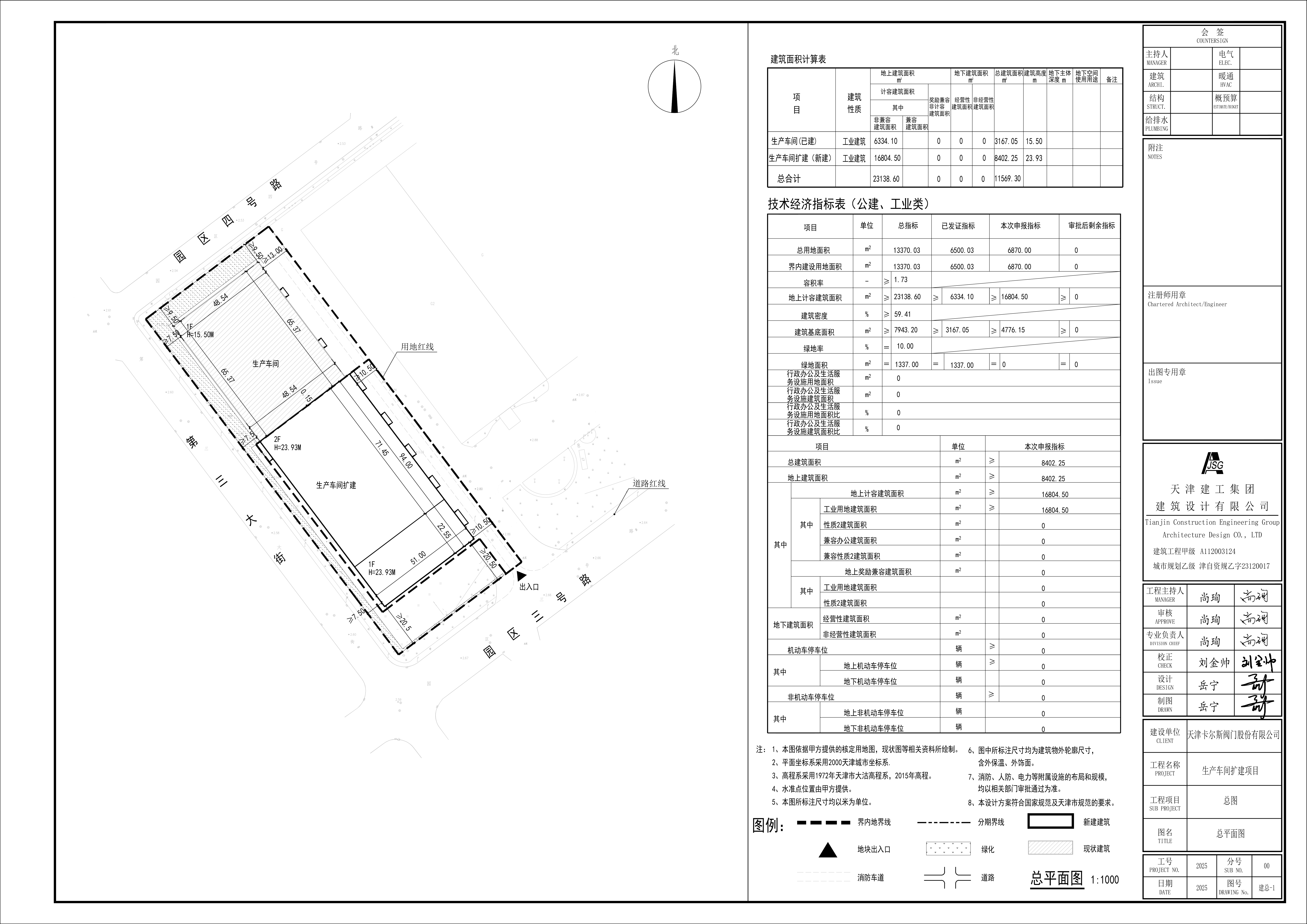
依据《中华人民共和国城乡规划法》和住房城乡建设部《关于城乡规划公开公示的规定》等相关规定要求,现将天津卡尔斯阀门股份有限公司生产车间扩建项目建设工程设计方案总平面图公示,公示时间为7个工作日( 从2025年6月20日至2025年6月30日)。
建议意见反馈方式:可通过电子邮箱或信件反馈
邮寄地址:亚洲博彩app 潮阳大道北侧(天津市规划和自然资源局宝坻分局)
邮政编码:301800
征求意见时间为7个工作日,逾期视为无意见。
