十大亚洲博彩app排行榜
2019年12月3日星期二
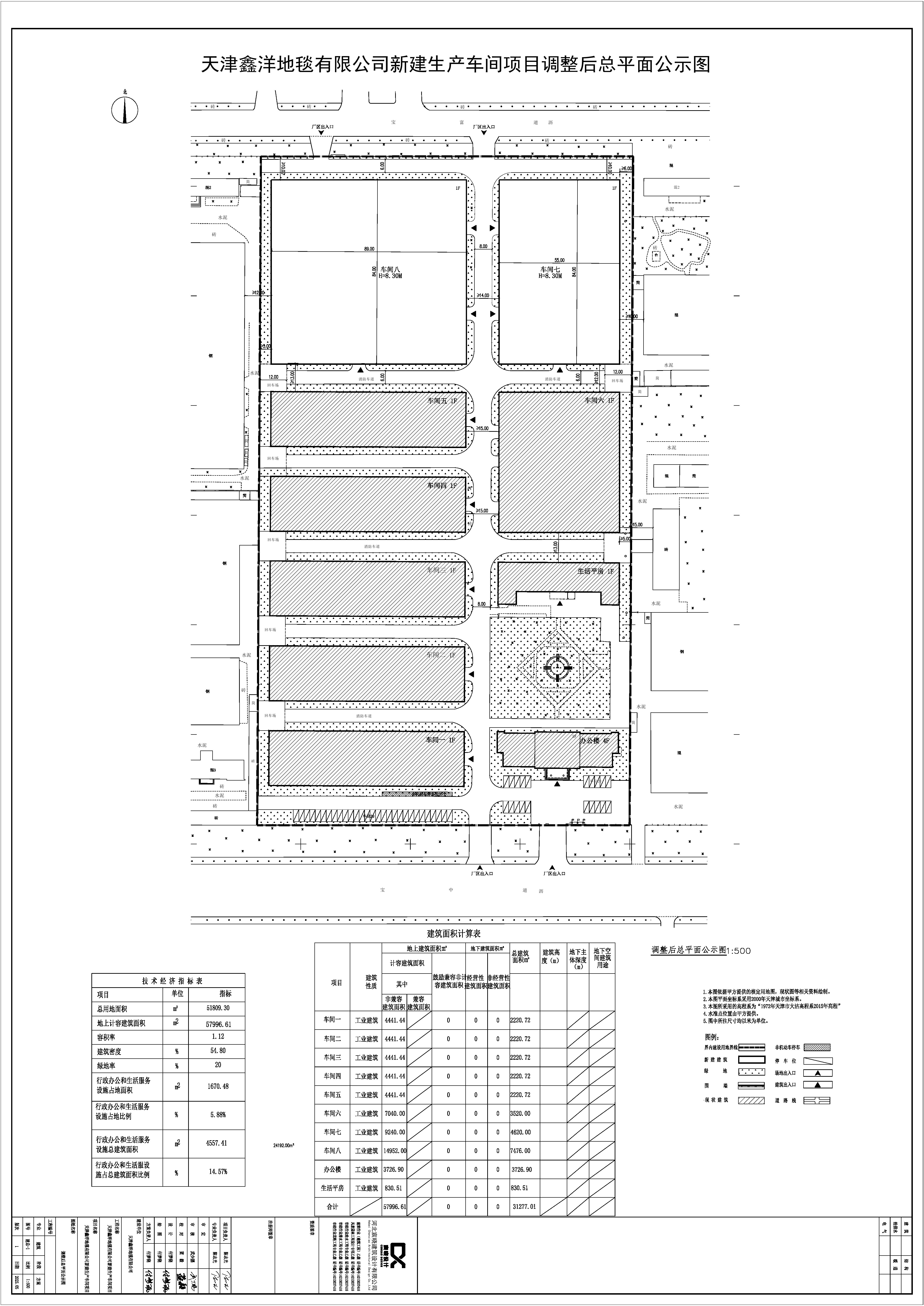
根据《中华人民共和国城乡规划法》、《城市、镇控制性详细规划编制审批办法》、《建设用地容积率管理办法》的有关规定,将该地块建设指标进行如下调整:将容积率47.63调整为容积率≥0.8,绿地率36.92%调整为≥20%。现将天津鑫洋地毯有限公司容积率调整方案予以公示。公示期7个工作日,自2025年6月23日至2025年7月1日为止。
建议意见反馈方式:可通过电子邮箱或信件反馈
邮寄地址:亚洲博彩app 潮阳大道北侧(天津市规划和自然资源局宝坻分局)
邮政编码:301800
征求意见时间为7个工作日,逾期视为无意见。

